Skip to product information
Simple Cottage 2,150 sf (3B/2.5b)

Simple Cottage 2,150 sf (3B/2.5b)

$1,030.00

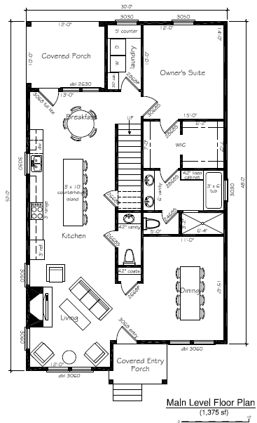
“Simple” should never be construed as less because the greatest ideas sometimes spring from “simple” beginnings.  This cottage, at 2,150 sf, just simply has it all.  The front door has a coat closet in front, the dining to the right (add windows to this room if you can), and the living room with its fireplace to the left.  Beyond the Living is the very long Kitchen with its inviting 10’ long island with seating.  (Surprisingly, these long bars work wonders at keeping people out of the kitchen work space!)  Beyond the Kitchen is the Breakfast area with a double window and a full lite door leading to a covered back porch. The walk-in laundry is just off of the Breakfast and next to the Owner’s Suite entry which is tucked behind the stairwell.

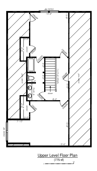
            Upstairs, are two very large bedrooms with a shared bath.  The closets shown could be expanded into the space under the roof if desired, but the  8’ x 3’ closets shown are ample enough.  A door to the large space under roof allows for plenty of storage just at the top of the stair.  Simple ideas with a wonderful outcome. Watchathink?

(home in photo built by Hughes Development, LLC - TN)