Skip to product information
Ultra-modern Farmhouse 1,850sf (3B/2.5b/study)

Ultra-modern Farmhouse 1,850sf (3B/2.5b/study)

$1,030.00

            I was presented with a call for a modern style home.  OK.

This particular site had a view that was angled from the property and I saw this as opportunity to create a tall modern element that addressed that view.  By using simplified forms, such as the inset porch entry, the “cut-out” rear porches, the simplified slab roof shapes, and offset windows, the shape of this home resulted in the “modern style” you see.  The board and batten siding adds to the vertical appearance which is interrupted by horizontal siding at key locations such as at the tower and entries.

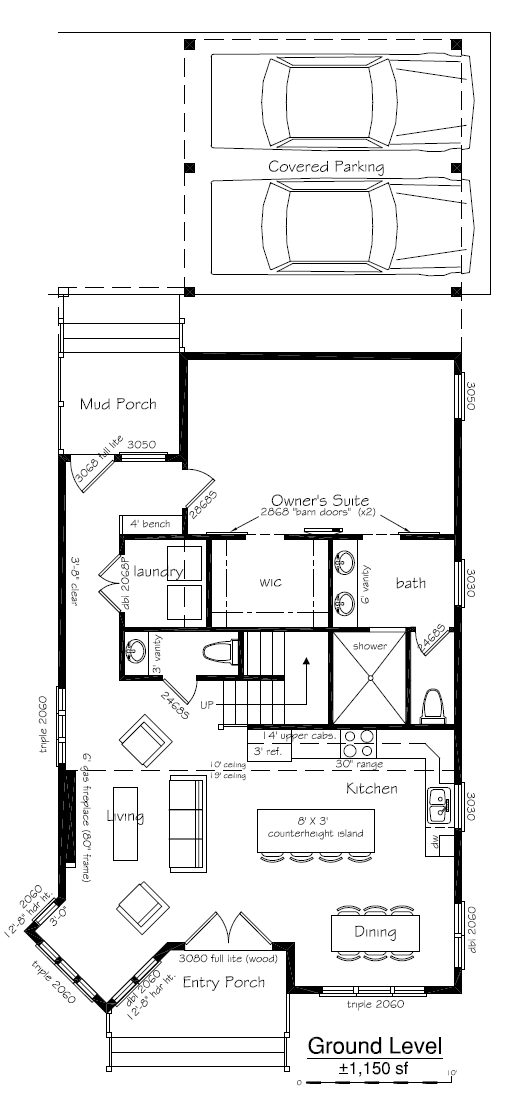
            Once inside, the purpose of the outside is completely understood. The front room is a full two stories tall which allows for the upstairs to overlook to below, and allows for both floors to enjoy the views of the oriented tower. The footprint is just over 30’ wide, making it well suited for infill lots where this style seems prevalent.

(home in photo built by Hughes Development, LLC - TN)