Skip to product information
Grand Victorian 3,000sf (4B/4.5b/flex)

Grand Victorian 3,000sf (4B/4.5b/flex)

$1,030.00

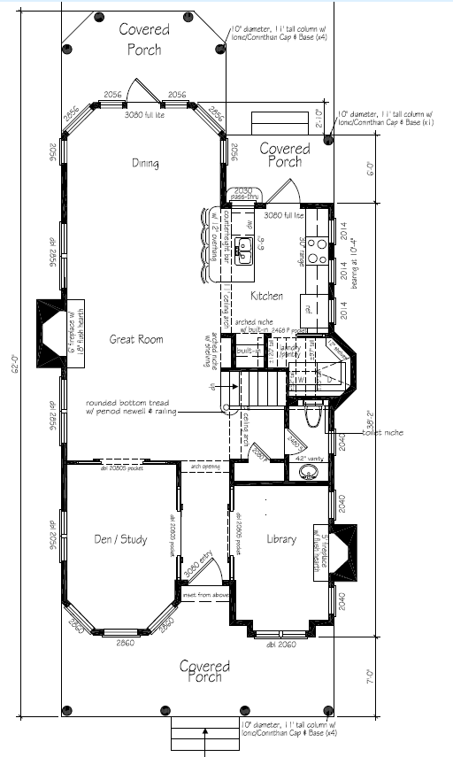
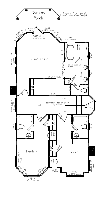
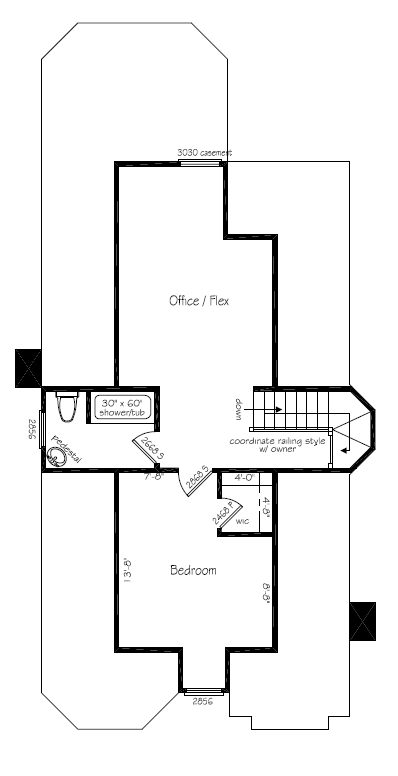
This “Grand Victorian” brick home is an enigma in that it is only 3,000 sf but has three fully appointed suites, an upstairs bedroom, flex, and bathroom, and, on the ground floor, a Library (flex space), a Den/Study, a very large Great Room with a fireplace, and an amazing Dining room and ample kitchen w/ pantry/laundry.  This home was designed to fit thin urban lots (it is a 28’ wide home) and can infill areas where Victorian style homes historically existed.  This 3-story home fits well on lots with rear views as there are large covered porches for the Dining/Great Room and for the Master Suite above. The Kitchen is served by a small covered porch for outside food prep and has steps accessible to your grill. 

The great Victorian style shapes used in this design cause this home to have visual interest at just about any turn.  With the proper appointments (wood railings, special newel posts, & trims), this home can be a true work of art.  You’re work of art.

(home in photo built by Wall Construction - TN)